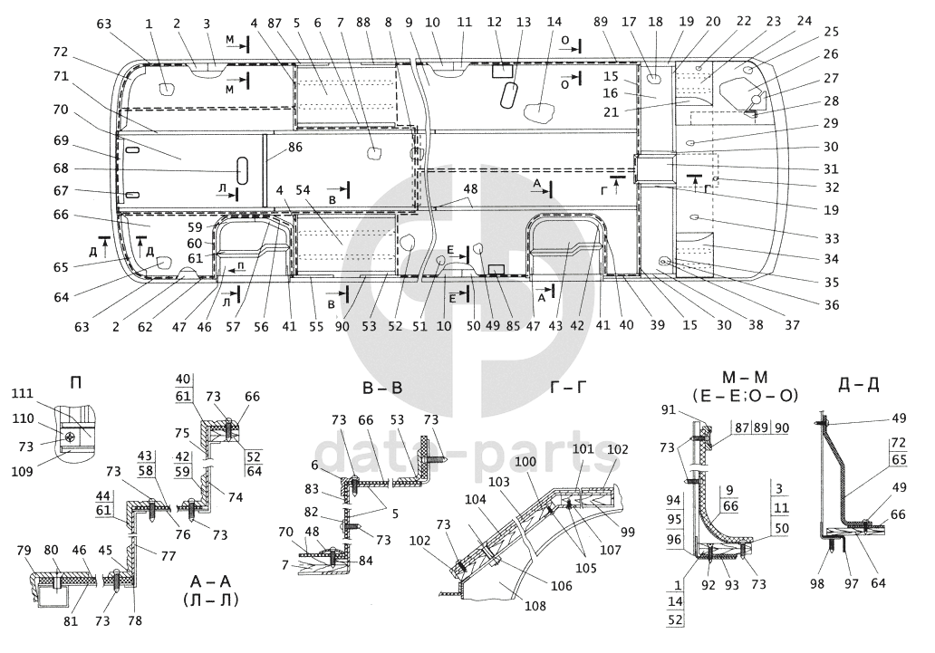
Кожухи арок колес, настил и коврики пола автобуса ПАЗ4234 ПАЗ-4234

1
4234-5102022
Доска пола задняя левая
Кол-во
0
?
2
4234-5109108
Панель пола задняя дополнительная
Кол-во
0
?
3
3205-5109073
Панель пола задняя внутренняя
Кол-во
1
?
4
3205-5109097-01
Профиль облицовки арки боковой
Кол-во
2
?
5
3205-5107027
Кожух арки колеса задний левый
Кол-во
1
?
6
3205-5109030
Облицовочный уголок заднего кожуха
Кол-во
2
?
7
4234-5102018
Доска пола средняя
Кол-во
0
?
8
3205-5102044
Прокладка
Кол-во
1
?
9
4234-5109056
Ковер пола левый
Кол-во
0
?
10
3205-5109105
Панель пола левая средняя
Кол-во
1
?
11
3205-5109096
Панель пола левая передняя
Кол-во
0
?
12
3205-5402094
Кожух горловины бензобака
Кол-во
1
?
13
3205-510908010
Крышка люка бензобака
Кол-во
1
?
14
4234-5102014
Доска пола передняя левая
Кол-во
0
?
15
3205-70-5109090-01
Профиль по левой арке нижний
Кол-во
1
?
16
3205-70-5109061
Ковер правой передней арки колеса
Кол-во
0
?
17
3205-07-5109038-10
Шумопоглощающая прокладка
Кол-во
1
?
18
3205-07-5109041-10
Утеплитель
Кол-во
1
?
19
3205-70-5109067
Профиль облицовочный по передней арке правый
Кол-во
0
?
20
3205-70-5109091-01
Профиль по левой арке верхний
Кол-во
1
?
21
3205-5109102
Коврик вертикальной стенки кожуха арки
Кол-во
1
?
22
32053-5107016
Кожух арки переднего левого колеса в сборе
Кол-во
1
?
23
3205-5109018
Коврик полика водителя задний
Кол-во
1
?
24
3205-5109014
Коврик полика водителя
Кол-во
1
?
25
3205-5107033
Полик водителя с панелью передка в сборе
Кол-во
1
?
26
3205-5107050
Крышка полика над рулевой колонкой
Кол-во
1
?
27
3205-5107048
Крышка полика над рулевой колонкой передняя
Кол-во
1
?
28
3205-5107038
Крышка люка с педалью акселератора
Кол-во
1
?
29
4234-5113014
Панель над КПП левая
Кол-во
0
?
30
3205-70-5109068
Профиль облицовочный по передней арке левый
Кол-во
0
?
31
4234-5113072
Крышка люка над КПП в сборе
Кол-во
0
?
32
4234-5113064
Профиль
Кол-во
0
?
33
4234-5113010
Панель над КПП правая
Кол-во
0
?
34
4234-5107010
Кожух арки переднего правого колеса в сборе
Кол-во
0
?
35
3205-70-5109065-01
Профиль по правой арке
Кол-во
1
?
36
3205-07-5109048-10
Прокладка
Кол-во
1
?
37
3205-07-5109058-10
Утеплитель
Кол-во
1
?
38
3205-70-5109062
Ковер левой передней арки колеса
Кол-во
0
?
39
3205-5109089
Уголок крепления коврика пола
Кол-во
0
?
40
3205-5109042
Профиль подножки верхний
Кол-во
1
?
41
3205-5109047
Профиль нижней ступени боковой правый
Кол-во
1
?
42
3205-5109043
Профиль облицовочный верхней ступени подножки нижний
Кол-во
1
?
43
3205-5109040
Коврик верхней ступени подножки
Кол-во
1
?
44
3205-5109045
Профиль облицовочный средней ступени подножки верхний
Кол-во
1
?
45
3205-5109051
Профиль средней ступени нижний
Кол-во
0
?
46
3205-5109037
Коврик нижней ступени подножки
Кол-во
0
?
47
3205-5109050
Профиль нижней ступени боковой левый
Кол-во
0
?
48
3205-5109076-02
Профиль облицовочный дорожки пола
Кол-во
4
?
49
4234-5108034
Коврик инструментального ящика
Кол-во
0
?
50
4234-5109112
Панель пола правая № 2
Кол-во
0
?
51
3205-5108034
Коврик инструментального ящика
Кол-во
0
?
52
4234-5102010
Доска пола передняя правая
Кол-во
0
?
53
3205-5109060
Облицовочный уголок правого заднего кожуха
Кол-во
2
?
54
3205-5107026
Кожух арки колёса задний правый
Кол-во
1
?
55
3205-5109078
Профиль крепления ковра к боковине задний
Кол-во
0
?
56
32051-5109085
Профиль облицовочный подножки верхней ступени верхний задний
Кол-во
0
?
57
32051-5109045-10
Профиль облицовочный подножки верхней ступени нижний задний
Кол-во
0
?
58
32051-5109041-10
Коврик подножки верхней ступени
Кол-во
0
?
59
32051-5109044-20
Профиль облицовочный подножки верхней ступени нижний передний
Кол-во
0
?
60
32051-5109084-10
Профиль облицовочной подножки верхней ступени верхний передний
Кол-во
0
?
61
32051-5109046-10
Профиль средней ступени подножки верхний
Кол-во
0
?
62
4234-5109080
Профиль облицовочный задний правый
Кол-во
0
?
63
3205-5109035
Профиль крепления ковра пола по задку кузова
Кол-во
0
?
64
4234-5102020
Доска пола задняя правая
Кол-во
0
?
65
3205-5109074
Панель облицовочная задка правая
Кол-во
1
?
66
4234-5109058
Коврик пола правый
Кол-во
0
?
67
672-8036082
Кронштейн
Кол-во
2
?
68
3205-5113036-10
Крышка люка запасного колеса
Кол-во
1
?
69
3205-5109083-01
Профиль облицовочный задка
Кол-во
1
?
70
4234-5109066
Дорожка ковра пола
Кол-во
0
?
71
4234-5109076
Профиль облицовочный дорожки пола
Кол-во
0
?
72
3205-5109074
Панель облицовочная задка правая
Кол-во
0
?
73
241820-П29
Винт М4х18
Кол-во
0
?
74
3205-8405012
Вертикальная стенка подножки
Кол-во
1
?
75
3205-5109088
Облицовочная панель подножки верхняя
Кол-во
1
?
76
3205-8405018
Верхняя ступень подножки
Кол-во
1
?
77
3205-8405020
Вертикальная стенка верхней ступени подножки
Кол-во
1
?
78
3205-5109086
Облицовочная панель подножки нижняя
Кол-во
1
?
79
3205-5109057
Уголок облицовочный нижней ступени подножки
Кол-во
1
?
80
223040-П29
Винт М5-6gх16 ОСТ 37.001.126-81
Кол-во
3
?
81
3205-8405022
Нижняя ступень подножки
Кол-во
1
?
82
252002-П29
Шайба 4
Кол-во
0
?
83
3205-5109036
Коврик заднего кожуха арки
Кол-во
2
?
84
241822-П29
Винт М4х25
Кол-во
0
?
85
4234-3703094
Кожух выключателей аккумуляторной батареи
Кол-во
0
?
86
3205-5109077-01
Профиль дорожки пола
Кол-во
0
?
87
4234-5109082
Профиль облицовочный задний левый
Кол-во
0
?
88
4234-5109085
Профиль облицовочный левой боковины левый
Кол-во
0
?
89
4234-5109084
Профиль облицовочный левой боковины правый
Кол-во
0
?
90
4234-5109087
Профиль облицовочный правой боковины средний
Кол-во
0
?
91
4234-5109140
Кант среднего профиля правой боковины
Кол-во
0
?
92
606032
Винт М6х30
Кол-во
0
?
92
Е30414
Винт СП М6х30
Кол-во
0
?
93
Герметик Викар ЛТ 40х2 ТУ 75.11903-550-98
Герметик Викар ЛТ 40х2 ТУ 75.11903-550-98
Кол-во
0
?
94
4234-5102034
Уголок крепления пола (задний левый)
Кол-во
0
?
95
3205-5102032-10
Уголок крепления пола левой боковины № 1 (передний)
Кол-во
0
?
96
4234-5102036
Уголок крепления пола правой боковины средний
Кол-во
0
?
97
3205-3716026
Брызговик задних фонарей правый
Кол-во
0
?
98
240820-П29
Винт М4х18
Кол-во
0
?
99
3205-70-5113076
Доска крышки КПП верхняя
Кол-во
0
?
100
4234-5113078
Доска крышки КПП наклонная
Кол-во
0
?
101
4234-5113081
Профиль облицовочный крышки люка над КПП левый
Кол-во
0
?
102
3205-70-5113084
Профиль облицовочный крышки люка над КПП
Кол-во
0
?
103
4234-5113086
Коврик крышки люка
Кол-во
0
?
104
4234-5113100
Шумоизоляция крышки КПП
Кол-во
0
?
105
240618-П29
Винт 4х12
Кол-во
0
?
106
224631-П29
Винт М6х30
Кол-во
0
?
107
4234-5113110
Каркас крышки люка над КПП в сборе
Кол-во
0
?
108
4234-5113061
Кронштейн крепления крышки над КПП левый
Кол-во
0
?
109
3205-5109034
Профиль облицовочный панели пассажирской подножки
Кол-во
0
?
110
3205-5402208
Наконечник штапика
Кол-во
0
?
111
3205-5109039
Кант
Кол-во
0
?
Есть готовая заявка? Отправьте ее нам!
Если у вас уже есть список необходимых запчастей, загрузите файл с ним или укажите артикулы и названия запчастей в поле Комментарий, а также оставьте свои контактные данные. В течение рабочего дня мы оценим вашу заявку и отправим вам коммерческое предложение.
Отдел продаж

Если у вас уже есть готовая заявка на запасные части, то просто прикрепите файл с ней либо в поле «Комментарии» напишите артикулы и названия необходимых вам запчастей и оставьте контактные данные.

В течение рабочего дня мы выполним расчёт по вашей заявке и направим вам коммерческое предложение.

Только один файл.
Ограничение 128 МБ.
Допустимые типы: txt, rtf, pdf, doc, docx, odt, ppt, pptx, odp, xls, xlsx, ods.
пример: 89511234567 или +79511324567
Отправляя форму вы подтверждаете согласие с политикой обработки персональных данных.